ENCANTADORA CASA DE ESQUINA EN PRIMERA LÍNEA DE PLAYA EN LA CALA DEL MORAL, CON JARDÍN PRIVADO Y ACCESO DIRECTO AL MAR. REF:64307
- 750,000€
ENCANTADORA CASA DE ESQUINA EN PRIMERA LÍNEA DE PLAYA EN LA CALA DEL MORAL, CON JARDÍN PRIVADO Y ACCESO DIRECTO AL MAR. REF:64307
- 750,000€
Descripción
TLF WhatsApp: (+34) 670,671,098. ENCANTADORA CASA DE ESQUINA EN PRIMERA LÍNEA DE PLAYA EN LA CALA DEL MORAL, CON JARDÍN PRIVADO Y ACCESO DIRECTO AL MAR. DISTRIBUIDA EN DOS PLANTAS, CUENTA CON SALÓN, COCINA INDEPENDIENTE, 4 DORMITORIOS Y 3 BAÑOS, INCLUYENDO SUITE CON VISTAS AL MAR. IDEAL COMO PRIMERA RESIDENCIA O CASA DE VACACIONES. ¡SU CAPRICHO FRENTE AL MAR LE ESPERA!
Le presentamos una oportunidad única de vivir frente al mar en una de las zonas más codiciadas de La Cala del Moral. Esta encantadora vivienda ofrece dos accesos directos a la playa, un jardín privado y unas vistas espectaculares al mar, creando un entorno tropical y relajante ideal para disfrutar del estilo de vida mediterráneo.
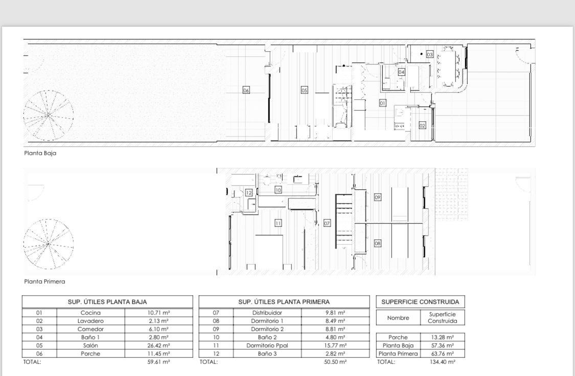
Distribuida en dos plantas, la casa combina comodidad, luminosidad y funcionalidad:
Planta baja: amplio salón con luz natural, cocina independiente, dormitorio comedor y baño completo.
Planta superior: tres dormitorios y dos baños, incluyendo una suite principal con vistas al mar, perfecta para despertar cada día con la brisa marina y la tranquilidad del entorno.
Situada en una zona con todos los servicios al alcance –comercios, restaurantes y transporte–, esta vivienda es perfecta tanto como primera residencia como casa de vacaciones. Su jardín privado y el acceso directo a la playa hacen de esta propiedad un verdadero lujo, donde podrá disfrutar de momentos inolvidables en familia o con amigos.
¡No deje escapar su capricho en primera línea! Venga a visitarla y descubra la magia de vivir en La Cala del Moral, con la comodidad y el encanto de un hogar frente al mar.
Infografías introducidas con Home Staging (solo las especificadas con frase: “contenido alterado con IA”) y propuesta de reforma para visualizar el potencial de las estancias y sus posibilidades de decoración. Imágenes a título orientativo, mobiliario y reforma no incluidos
Certificados Energéticos en trámite. En cumplimiento del RD de la Junta de Andalucía 218/2005 de 11 de Octubre se informa a los Sres. consumidores que en los precios indicados no están incluidos los gastos derivados de la compra de inmuebles según las leyes vigentes, (ITP, gastos notariales…).. Le apoyaremos en todos los trámites financieros, y bancarios, siempre que la compra se finalice mediante las gestiones de nuestra empresa. Más información (+34) 670, 671, 098.
Si esta vivienda no es lo que estás buscando, contáctanos y nos encargaremos de hacerte una búsqueda totalmente personalizada adaptándonos a sus necesidades.
Publicado desde Sistema de Gestión Inmobiliaria.
No obstante, la información que contiene esta web puede ser sujeta a errores u omisiones.
Las propiedades pueden ser sujetas a cambio de precio, venta o retirada del mercado.
Detalles
Programa una visita
Contacta con nosotros
Propiedades similares
- Stefano Promociones







































